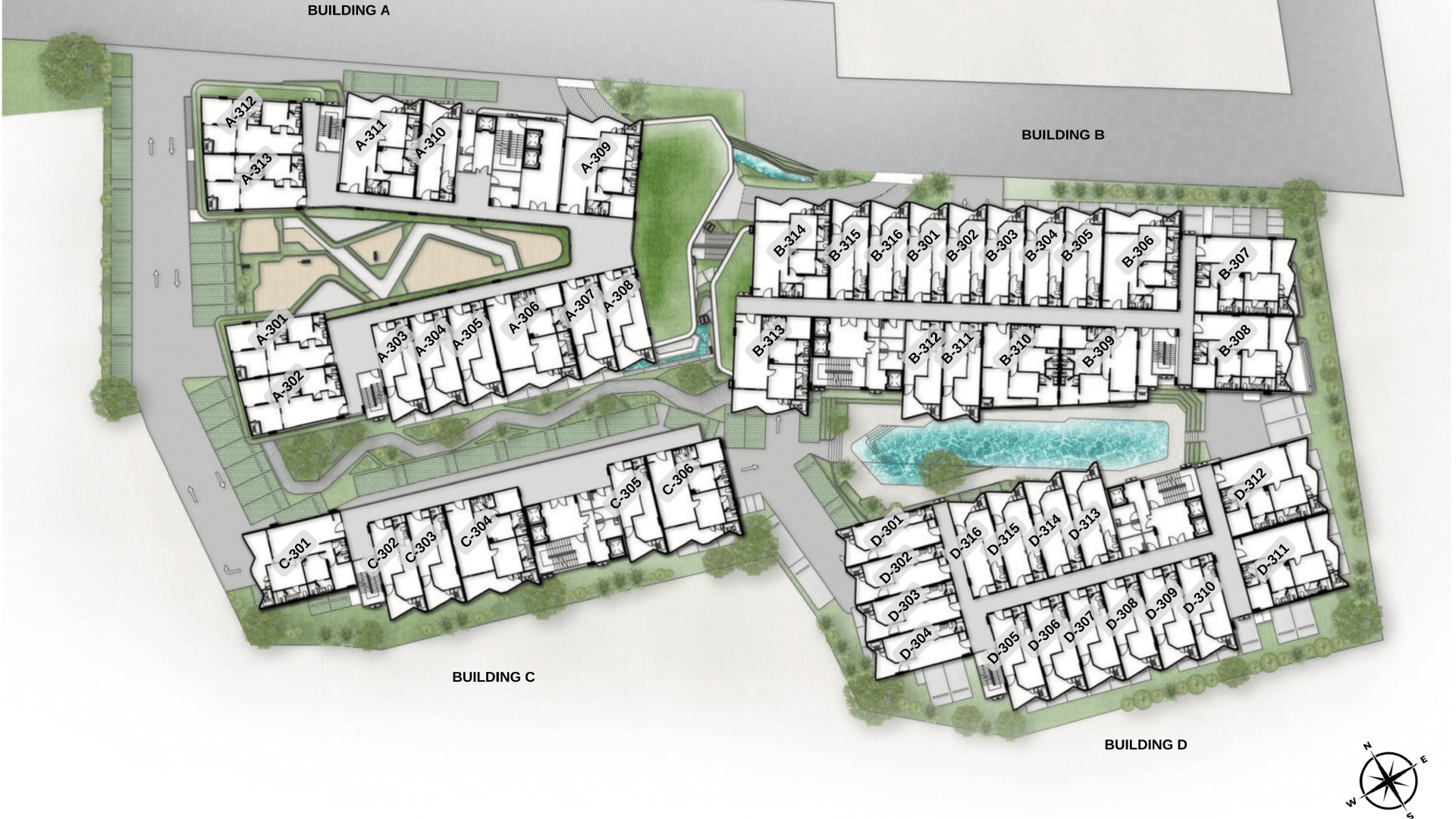
Select a unit below for more information
Total Parking: 141 Cars*
*Depending on vehicle’s size and usage*