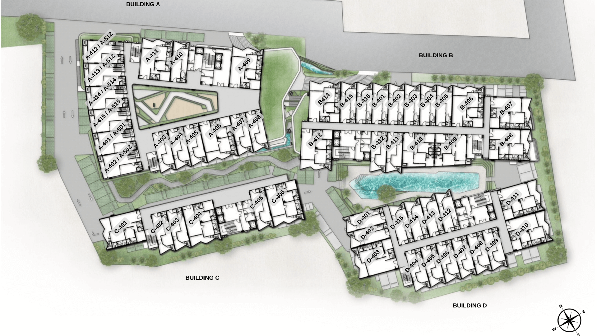
4th FLOOR

Select a unit below for more information

Plan

Select a button below for more information